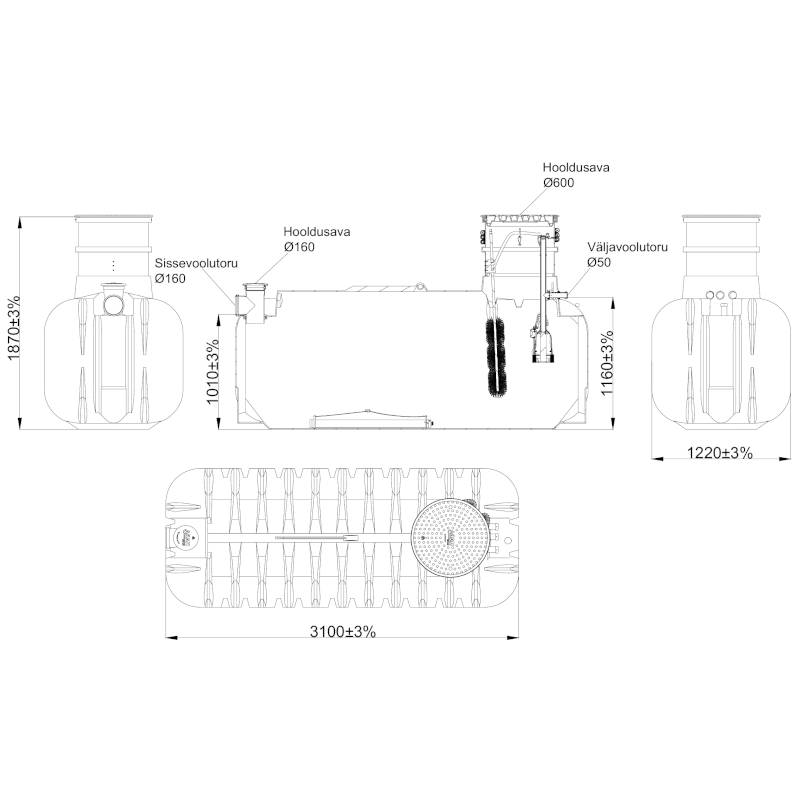
biopuhasti-haba-rl-bio-easy-flow-7-flat-joonis